Používame cookies

Súbory cookie a ďalšie technológie sledovania používame na zlepšenie vášho zážitku z prehliadania našich webových stránok, na to, aby sme vám zobrazovali prispôsobený obsah a cielené reklamy, na analýzu návštevnosti našich webových stránok a na pochopenie toho, odkiaľ naši návštevníci prichádzajú. Viac info

Výrobná hala s mostovým žeriavom v Nitre na prenájom

Popis nehnuteľnosti

Zdieľať na Facebooku

Na prenájom výrobné a skladové priestory s administratívou – Nitra, priemyselný areál

Ponúkame Vám na prenájom rozsiahle výrobné a skladové priestory s administratívnym zázemím v Nitre. Objekt sa nachádza v stráženom priemyselnom areáli s výbornou dostupnosťou na rýchlostnú cestu R1. Celý areál aj samotná budova prešli kompletnou rekonštrukciou a priestory je možné flexibilne prispôsobiť požiadavkám budúceho nájomcu. Vhodné pre výrobu, skladovanie aj logistiku.


Základné informácie

  • Celková dostupná plocha: až 2 050 m²

  • Lokalita: Nitra – priemyselný areál

  • Dostupnosť: cca 1 km od R1

  • Možnosť úpravy výmer podľa potrieb nájomcu


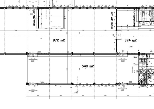
Výrobné a skladové priestory

  • Výrobná hala č. 1: 540 m² (45 × 12 m)

    • mostový žeriav s nosnosťou 3 200 kg

  • Výrobná hala č. 2: 972 m² (54 × 18 m)

  • Sklad: 324 m²

  • pancierová liata podlaha v halách

  • vykurované halové priestory

  • Výška po nosníky 5,88 m

  • Výška po strop 6,98 m


Administratíva a zázemie

  • Administratívna časť: 2 podlažia × 100 m²

  • kancelárie

  • šatne so sprchami

  • toalety

  • denná miestnosť pre zamestnancov

  • vykurované kancelárske priestory


Technické vybavenie a bezpečnosť

  • kompletná rekonštrukcia objektu

  • nová fasáda

  • strážený areál s vrátnicou

  • kamerový systém

  • strážna služba


Využitie objektu

  • výroba

  • skladovanie

  • logistika

  • kombinácia výroby a administratívy


Cena

5,00 €/m2/mesiac bez DPH + energie

 

Kontakt

Lukáš Badinka
📞 +421 904 64 74 34
✉️ badinka@realsk.sk

Vlastnosti

Status:
aktívne
Vlastníctvo:
osobné
Úžitková plocha:
2050 m2
Zastavaná plocha:
1950 m2
Podlahová plocha:
1950 m2
Stav:
úplne prerobený
Celková plocha:
2050 m2
5 €/m2/mesiac
Obec: Nitra
Okres: Nitra
Kraj: Nitriansky kraj
Druh: Priestory
Typ: Prenájom
Typ objektu: Priestor pre výrobu

Lukáš Badinka

  • Slovensky
  • Česky
  • English

Radi Vám poradíme