Používame cookies

Súbory cookie a ďalšie technológie sledovania používame na zlepšenie vášho zážitku z prehliadania našich webových stránok, na to, aby sme vám zobrazovali prispôsobený obsah a cielené reklamy, na analýzu návštevnosti našich webových stránok a na pochopenie toho, odkiaľ naši návštevníci prichádzajú. Viac info

Prenájom výrobnej haly s administratívou – Lehota

Popis nehnuteľnosti

Zdieľať na Facebooku

Prenájom výrobnej haly s administratívou – Lehota

Ponúkame Vám na prenájom samostatnú výrobnú halu s administratívou nachádzajúcu sa v priemyselnej časti obce Lehota, s výborným napojením na diaľnicu a bezproblémovým prístupom aj pre nákladnú dopravu.
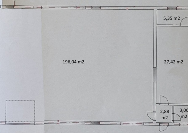
Predmetom nájmu je spoločná plocha výroby a administratívy o celkovej výmere 252,84 m², z toho:

  • výroba: 196,04 m²

  • administratíva: 56,80 m²

Priestory tvoria časť väčšieho objektu, no sú vhodné ako samostatný funkčný celok pre výrobu, servis, montáž alebo skladovanie s administratívnym zázemím.


Výrobné priestory

  • Výmera výroby: 196,04 m²

  • samostatný výrobný priestor

  • vstup cez vlastnú bránu

  • rozmery brány: 2,88 × 2,61 m

  • výrobný priestor je vykurovaný a klimatizovaný

  • v priestore sa nachádza umývadlo

  • svetlá výška cca 3 m

  • vhodné pre:

    • ľahkú a strednú výrobu

    • montáž, servis

    • technickú prevádzku

    • skladovanie a logistiku


Administratíva

  • Celková plocha: 56,80 m²

  • samostatný vchod + vchod z výroby

  • predsieň, WC so sprchovým kútom, kancelária s kuchynkou, archív

  • vhodné ako:

    • technická a administratívna podpora výroby

    • menšie sídlo firmy


Technický stav a vybavenie

  • objekt po čiastočnej rekonštrukcii

  • plastové okná a dvere

  • nová plechová strecha

  • klimatizácia

  • vykurovanie

  • kamerový systém

  • internet


Exteriér a parkovanie

  • spevnené plochy v areáli

  • možnosť nájmu voľnej plochy až do 1 000 m²

  • dostatok parkovacích miest

  • bezproblémová manipulácia aj pre nákladné vozidlá


Lokalita

  • Lehota – priemyselná časť obce

  • výborné napojenie na diaľnicu

  • rýchla dostupnosť do Nitry


Cena

Dohodou


Kontakt

Lukáš Badinka
📞 +421 904 64 74 34
✉️ badinka@realsk.sk

Vlastnosti

Status:
aktívne
Vlastníctvo:
osobné
Úžitková plocha:
252.84 m2
Zastavaná plocha:
252.84 m2
Stav:
čiastočne prerobený
Celková plocha:
252.84 m2
Dohodou
Ulica: Lehota
Obec: Nitra
Okres: Nitra
Kraj: Nitriansky kraj
Druh: Priestory
Typ: Prenájom
Typ objektu: Priestor pre výrobu

Lukáš Badinka

  • Slovensky
  • Česky
  • English

Radi Vám poradíme