
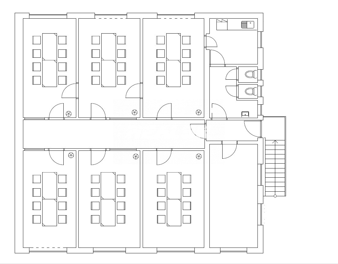
Ponúkame Vám na prenájom kancelárske priestory, ktoré tvoria samostatnú časť budovy s vlastným vstupom z parkoviska. Priestory sa nachádzajú na 2. NP a ich celková plocha je 151,7 m2, na ktorých sa nachádza 6 kancelárií, chodba, kuchynka a WC. Každá kancelária má cca 18 m2. Niektoré sú priechodné, no dispozíciu je po dohode možné prispôsobiť. K dispozícii je parkovisko bezprostredne pred budovou. Priestory sa nachádzajú v súkromnom areáli na Bratislavskej ul., majú výborný prístup z diaľnice R1, ako aj z centra mesta.
Cena: 9,00 €/m2/mesiac bez DPH + energie.
Cena za parkovacie miesto je 50 €/mesiac bez DPH.
K dispozícii je aj sklad o výmere 97 m2. Sklad má výšku 3,5 m a vlastnú bránu s rozmermi 3,9 x 3,2 m (VxŠ).
Cena za sklad: 5,20 €/m2/mesiac bez DPH + energie a spoločné prevádzkové náklady.
Realitný maklér: Lukáš Badinka
Tel.: 0904 64 74 34
E-mail: badinka@realsk.sk
Interné ID: | 3200859480 |
---|---|
Ulica: | Bratislavská |
Obec: | Nitra |
Okres: | Nitra |
Kraj: | Nitriansky kraj |
Druh: | Priestory |
Typ: | Prenájom |
Typ objektu: | Kancelárske priestory |