Používame cookies

Súbory cookie a ďalšie technológie sledovania používame na zlepšenie vášho zážitku z prehliadania našich webových stránok, na to, aby sme vám zobrazovali prispôsobený obsah a cielené reklamy, na analýzu návštevnosti našich webových stránok a na pochopenie toho, odkiaľ naši návštevníci prichádzajú. Viac info

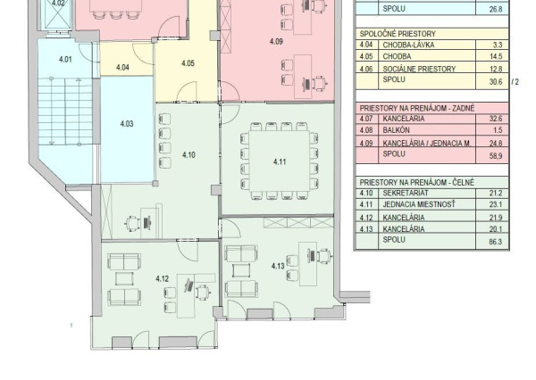
Nadštandardné kancelárske priestory v centre Nitry na prenájom

Popis nehnuteľnosti

Zdieľať na Facebooku

Ponúkame Vám na prenájom nadštandardné kancelárske priestory na 2.NP v absolútnom centre Nitry. Celková plocha priestorov predstavuje 74,2 m2, na ktorých sa nachádzajú 2 samostatné kancelárie s plochami 32,6 m2 a 24,8 m2. Jedna kancelária má balkónik o výmere 1,5 m2 vhodný pre fajčiarov. Zvyšných 15,3 m2 tvoria toalety a chodba. Priestory sú klimatizované a tvoria časť poschodia, na ktorom je už len jeden ďalší nájomca. K dispozícii je tiež vyhradené garážové státie. Objekt, v ktorom sa priestory nachádzajú má elektronického vrátnika, výťah a energetický certifikát triedy A, čo budovu zaradilo medzi "pasívne domy" s minimálnymi nákladmi na energie.

Cena: 800 €/mesiac bez DPH + energie.

 

Realitný maklér: Lukáš Badinka

tel.: +421 904 64 74 34

e-mail: badinka@realsk.sk

Vlastnosti

Status:
aktívne
Vlastníctvo:
osobné
Stav:
novostavba
Celková plocha:
74 m2
Úžitková plocha:
74.2 m2
Počet izieb:
2
Balkón:
nie
Výťah:
áno
Zateplený objekt:
nie
Terasa:
nie
800 €/mesiac
Interné ID: 403581
Ulica: Štúrova
Obec: Nitra
Okres: Nitra
Kraj: Nitriansky kraj
Druh: Objekty
Typ: Prenájom
Typ objektu: Kancelárie

Lukáš Badinka

  • Slovensky
  • Česky
  • English

Radi Vám poradíme